Trilocale in vendita

Verona - Valdonega
€ 335.000
3 locali 3 locali
102 Mq 102 Mq
1 bagno 1 bagno

Trilocale in vendita

Verona - Valdonega

Descrizione annuncio

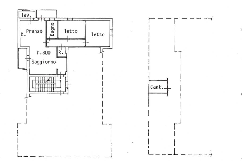
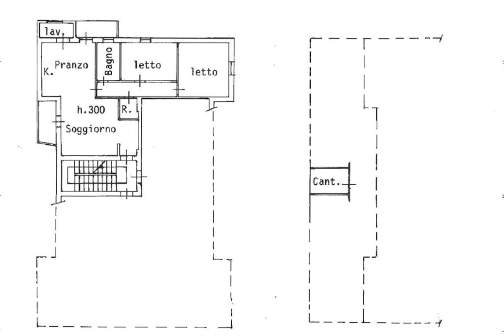
VALDONEGA-Nel cuore del tranquillo quartiere di Valdonega, proponiamo appartamento di 102 mq, situato al piano medio. La disposizione interna è studiata per ottimizzare gli spazi, rendendo l'appartamento ideale per chi cerca una soluzione abitativa pratica e ben collegata al centro storico. L'immobile è suddiviso in: soggiorno, sala da pranzo , cucinotto , ripostiglio /lavanderia, due camere doppie, servizio finestrato e cantina. L'immobile ha il riscaldamento autonomo, ed è climatizzato zona giorno-notte. Viene alienato completamente compledo di arredi ed elettrodomestici.

Mostra tutto

Nelle vicinanze

Trasporto pubblico Trasporto pubblico
Verona Porta Vescovo
Verona Porta Vescovo
2,6 Km
Viale dei Colli 1 VII
Viale dei Colli 1 VII
20 m
Viale dei Colli 2 I
Viale dei Colli 2 I
20 m
Ricariche auto elettriche Ricariche auto elettriche
AGSM - Lungadige S.Giorgio
820 m
Viale Gianbattista Da Monte
1,2 Km
AGSM Piazza San Tomaso
1,5 Km
AGSM - Piazza Arsenale
1,9 Km
AGSM Via Pallone
2,3 Km
Scuole Scuole
Scuole
410 m
Liceo scientifico Fracastoro
690 m
Istituto Don Nicola Mazza
750 m
Scuola Media Statale Valerio Catullo
820 m
Scuola Materna Comunale "Alla Fontana Del Ferro"
830 m
Farmacia Farmacia
Farmacia Donaduzzi Giovanni
380 m
Farmacia Ponte Pietra
890 m
Farmacia Burri
960 m
Farmacia Padovani Giancarlo e Figli
1,2 Km
Farmacia Ugolotti
1,2 Km
Ospedali Ospedali
Ospedale Civile Maggiore
1,4 Km
Casa di cura Villa S. Giuliana
1,5 Km
Supermercati Supermercati
Migross
980 m
Simply Market
1,4 Km
Esselunga
1,5 Km
PAM
1,6 Km
Famila
1,6 Km
Negozi Negozi
Alimentari Gironda
1,0 Km
Negozi
1,0 Km
Alcova di La
1,1 Km
Paola
1,1 Km
Boscaini
1,1 Km
Bar Bar
A.M.E.N
480 m
Tennis Club Torricelle
680 m
sciò rum
810 m
Bar Sant'Anastasia
1,3 Km
La Tramezzineria
1,3 Km
Ristoranti Ristoranti
Colombare
490 m
Locanda San Leonardo
560 m
Colle San Felice
730 m
Ristoranti
770 m
Re Teodorico
860 m
Mostra tutto

Caratteristiche

Rif.:
61145304
Piano:
1 di 4 (Piano medio)
Balconi:
2
Camere da letto:
2
Arredamento:
Completo
Condizionamento:
Autonomo
Mostra tutto
Prezzo Prezzo
€ 335.000
Rata mutuo Rata mutuo
€ 1.561 / mese
Spese annue Spese annue
€ 950
Proponi il tuo prezzoProponi il tuo prezzo

Classe Energetica

E
E
E
E
E
E
E
E
E
EP globale non rinnovabile:
124.85 kW h/m² anno
EP globale rinnovabile:
97.00 kW h/m² anno
EP invernale del fabbricato:
EP estiva del fabbricato:
Anno di costruzione:
1958
Riscaldamento:
Autonomo
Tipo impianto:
A radiatori
Tipo alimentazione:
Metano

Ti interessa visionare l'immobile?

Fissa un appuntamento  Fissa un appuntamento

Richiedi informazioni

* Questi campi sono obbligatori

Calcola il tuo mutuo

Semplice e senza impegno
Anticipo

( % )
Mutuo

( % )

pochi semplici passi

inserisci i tuoi dati
Questionario completato
Grazie per aver richiesto un appuntamento senza impegno con un nostro Consulente del Credito e Assicurativo.

Hai inserito correttamente tutti i dati necessari e a breve riceverai una e-mail con un link da convalidare per inviare i tuoi dati.
Affiliato
Studio Valdonega Srl
Via Mameli, 19/L 37126 Verona (VR)
Via Mameli, 19/L 37126 Verona (VR)
Zona: Pindemonte-Avesa-Valdonega-Cesiolo-Torricelle
Mostra su mappa
Orari: 09.00/12.30 -15.00/19.30 - aperto il sabato mattina 09.00/12.30
Affiliato
Studio Valdonega Srl
Via Mameli, 19/L 37126 Verona (VR)

2025 Tecnocasa Franchising S.p.A. - P. IVA 08365160152 - Via Monte Bianco 60/A 20089 Rozzano (MI). Ogni agenzia ha un proprio titolare ed è autonoma. Privacy policy | Policy utilizzo | Cookie policy